Appartement 3.5 pièces à Roche VD – Lot 3

CHF 735'000
A Roche VD,

Aperçu

  • Mis à jour le :
  • 22.04.2026
  • 2 Chambres
  • 2 Salles de bain
  • 81 m2

Description

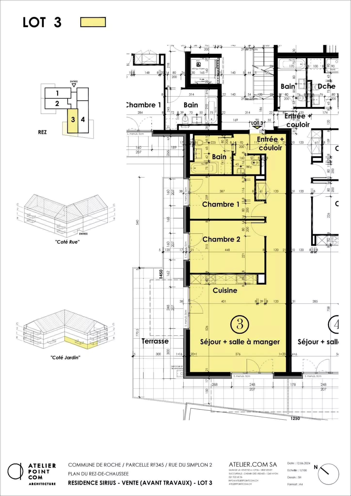
Dans une PPE de 18 appartements, ce 3,5 pièces en rez-de-chaussée bénéficie d’un jardin d’environ 170 m2, d’une surface habitable de 80,5 m2 et d’une terrasse de 30 m2.

Il est composé comme suit :

– Hall d’entrée et couloir
– 2 chambres à coucher
– WC visiteurs
– Salle de bains
– Cuisine ouverte
– Séjour/salle à manger accès sur la terrasse
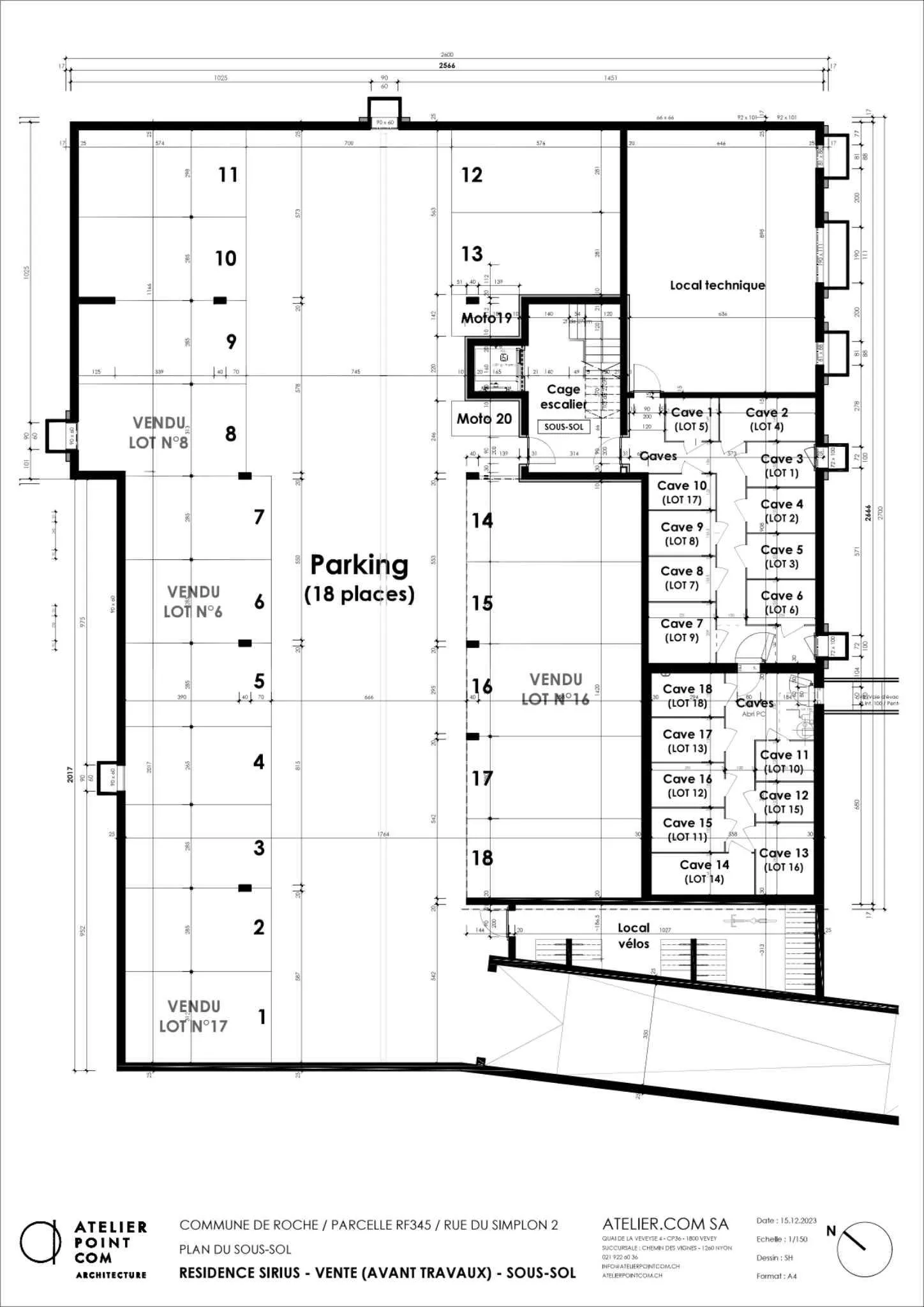
– Cave

Une place de parc intérieure est disponible en sus du prix à 35’000.-

Début des travaux février 2025.

Livraison automne 2026.

Lien vers le site web de la promotion : https://residence-sirius.ch/index.php

Adresse: A Roche VD
Ville:
Code postal: 1852
Pays: Suisse
Ouvrir dans Google Maps
Référence de l’annonce : 27434
Prix: CHF 735'000
Surface: 81 m2
Chambres: 3.5
Chambres: 2
Salles de bain: 2
Année de construction: 2026
Vente aux étrangers: non
Parking inclus dans le prix: non
Réf externe: 79524

Annonces similaires

9
Vente

À vendre lumineux appartement 4.5 pièces à S...

CHF 550'000
Cet appartement de 4.5 pièces est en bon état général d’entretien et bénéficie d&rsq ...
4.5 1 90 m2détails
Location

Joli appartement de 2 pièces au 1er étage au...

CHF 1'185
Apaprtement de 2 pièces comrpenant : – Un hall d’entrée avec armoires, – ...
2 1 44 m2détails
7
Location

Quartier Gruvatiez – 2,5 pièces

CHF 1'355
Situé dans le nouveau quartier de Gruvatiez à Orbe, ce projet résidentiel de 394 logements ...
2.5 1 1 m2détails
9
Vente

Affaire à saisir 1.5 pièce avec grand balcon...

CHF 310'000
Charmant 1.5 pièce lumineux avec balcon plein sud Cet appartement de 1.5 pièce offre une s ...
1.5 1 43 m2détails

Demande de dossier ou de renseignements

Comparer les annonces